Zeit-Raum Berlin

 

 

Tel. +49 30/ 441 66 22
(Prenzlauer Berg)
Tel. +49 30/ 322 33 00
(Charlottenburg)
Fax +49 30/ 441 66 23

| Profil | Angebote | Suche | Biete | Kontakt | Referenzen | Links | wanted! | AGB |
Lage:
Prenzlauer Berg-Sredzkistr.
Schnellkontakt
Art:
Stilvoll Wohnen in Maisonetten-Loft-Wohnung mit Dachterrasse am Kollwitzplatz
vergrößern


< Bild 5 von 51 >
Flash-Slideshow
Klicken Sie auf das Bild für die Großansicht.
Größe:
129 m²
Zimmer:
4
Frei ab:
sofort
Mietdauer:
max. bis 31.05.2026
Mindestens:
180 Tage
Typ:
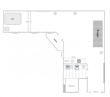
san. Altbau, Hinterhaus, 4. und 5. OG mit Lift
Zustand:
vollmöbliert, kompletter Hausrat
Ausstattung:
klassisch antik mit modernem Komfort

Extras:

Terrasse (5.OG Dach) und Balkon (4. OG) jeweils zum Hof, Klimaanlage, Lift, 2 Bäder, 2 Schlafzimmer! Zentralheizung, Parketboden, Waschmaschine, Geschirrspülmaschine, Mikrowelle, Kabel-TV, DVD Player, Stereo/CD. DSL Flatrate/Wifi im Mietpreis enthalten.
Bad:
1 Duschbad + 1 Wannenbad
Küche:
offene, moderne Einbauküche
Schlafplätze:
Doppelbett + 2 Einzelbetten
€/Monat:
2.050,00 €
Nebenkosten:
0
Provision:
siehe AGB
Kaution:
nach Vereinbarung
BVG:
Tram M2 (ca. 250m) zum Alexanderplatz
Sonstiges:
Ruhige und helle Nichtraucherwohnung über 2 Etagen (Maisonette) mit besonderem Charme durch sichtbares Mauerwerk!

Offene Bauweise - 4.OG: von der Eingangstür betritt man den Wohnbereich mit integrierter Küchenzeile, Schiebetürverbindung zum Schlafzimmer.
Große Duschkabine, Teakholzsteg und Fenster.
5.OG: Wannenbad, Schlafzimmer, Wohnbereich und Terrasse

Sehr gute Infrastruktur: Attraktive und ruhige Lage mit umfangreichem Angebot an Restaurants, Cafés und Kultur!

Energieausweistyp: Verbrauchsausweis
Energieverbrauchskennwert: 179 kWh/(m²*a),
Energieverbrauch für Warmwasser ist enthalten.
wesentliche Energieträger: Gas
Baujahr: 1900
Energieeffizienzklasse: F
zurück Anfrage